Продажа коммерческой недвижимости, 949.1 м²
Помещения для бизнеса в удобных локациях
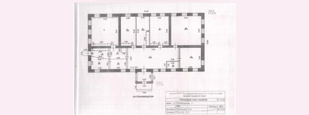
ПРОДАМ ПРОИЗВОДСТВЕННУЮ БАЗУ .
Ангар около 949.1м2.
Рядом ОФИСНОЕ ПОМЕЩЕНИЕ - 180 м2 ( под ремонт ).
Закрытая территория ( АЛТАЙСНЕК ) .
Удобное расположение , ОТЛИЧНЫЙ ТОРГ ПРИ ОСМОТРЕ !!!
РАССМОТРИМ ЛЮБОЙ ВИД РАСЧЕТА - ВОЗМОЖНА АРЕНДА С ВЫКУПОМ !!!
ПРОСМОТР ОБЪЕКТА КАЖДЫЙ ДЕНЬ С 9.00 до 19.00
Ссылка на объявление: https://фабриканедвижимости.рф/sale/salecommercial/8147
19 500 000
Гордеева В В


Алтайский край, Бийск, улица Кожзаводская, д 2

Информация по объекту

Площадь949.1 Этаж1 Этажей в доме1 Высота потолков5 СостояниеТиповой ремонт МебельНет ДоступПропускная система ПарковкаНаземная

Информация по зданию

Тип строенияПроизводственно-складской комплекс КатегорияДействующее ОтоплениеЦентральное Система пожаротушенияСигнализация

Инфраструктура