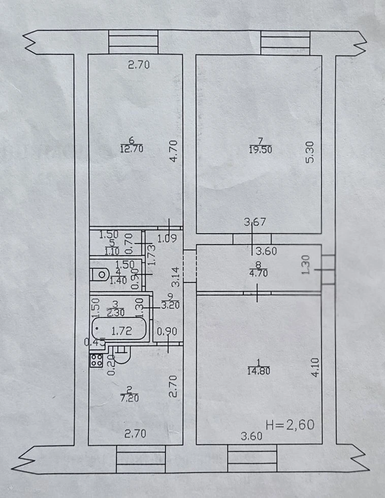
3-к. квартира, 66.9 м²
Продажа квартир на любой вкус и бюджет
Предлагается к продаже просторная трехкомнатная квартира в районе 1 участка!
Квартира расположена на втором этаже трехэтажного кирпичного дома.

Отличная планировка квартиры, все комнаты изолированные и очень просторные. Окна выходят на две стороны дома.
В квартире частично выполнен косметический ремонт, установлены пластиковые окна, установлена современная входная дверь, в санузле кафельная плитка.
В подвале имеются кладовые комнаты.

В подъезде поддерживается чистота и порядок. Во дворе достаточно парковочных мест для автомобилей.

Дом расположен в районе развитой инфраструктуры. Рядом с домом школа №5, детские сады, магазины разной направленности, аптеки, различные услуги и т.д.
Удобная транспортная развязка, рядом остановки общественного транспорта (автобус, трамвай).

Рассматриваем ОБМЕН на двухкомнатную квартиру с Вашей доплатой!!!

Звоните чтобы узнать дополнительную информацию и записаться на просмотр! Гарантия безопасной сделки и юридической поддержки нашим клиентам!
Ссылка на объявление: https://фабриканедвижимости.рф/sale/saleapartments/181299
5 990 000
Елена


Алтайский край, Бийск, улица Ленинградская, д 68
redeemДанный объект можно приобрести в ипотеку

Информация об объекте

Количество комнат3-к квартира Этаж2 Площадь66.9 Жилая площадь47 Площадь кухни7.2 Площадь комнат19,5; 14,8; 12,7 Раздельных санузлов1 ОкнаДвор + улица РемонтКосметический

Информация о доме

Год постройки1958 Тип домаКирпичный Этажей в доме3 Высота потолков2.6 ПарковкаНаземная